الأقصر – أحمد مرعى
الأربعاء، 01 أكتوبر 2025 04:11 مينشر "اليوم السابع" 7 صور ترصد خطوات العمل في منطقة اكتشاف لوحة جديدة تعود للعصر اليوناني الرومانى في معابد الكرنك، حيث إن اللوحة من حجر الكوارتز عثر عليها الفريق المشترك من البعثة المصرية الفرنسية المشتركة بالقرب من بوابة الملك رمسيس الثالث.
وقالت مصادر بالكرنك، إن تلك اللوحة المكتشفة هي إحدي اللوحات النادرة والأولى من نوعها، حيث إنها تكشف لأول مرة أعمال الإمبراطور "تيبيريوس" وتفاصيل علاقته بالآلهة المصرية، فهى لوحة متوسطة الحجم 60 سم في 40 سم، وتضم أعمال الإمبراطور الرومانى "تيبيريوس" وإهداءاته للمعبودات المصرية بفترة حكمه، حيث إن اللوحة عثر عليها كاملة وبحالة جيدة من الحفظ ويعلوها قرص الشمس المجنح كعادة اللوحات المصرية القديمة.
وأكدت المصادر الأثرية لـ"اليوم السابع"، أن اللوحة التي تم الكشف عنها بالكرنك عثر عليها كاملة وفي حالة جيدة من الحفظ ويعلوها قرص الشمس المجنح كعادة اللوحات المصرية، وفي الأسفل مجموعة من الكتابات باللغة المصرية القديمة (الهيروغليفية) وقد تم حفظها داخل مخزن (إيفرجت) بمعابد الكرنك، حيث تخضع حاليا لأعمال التنظيف والصيانة والدراسة عن طريق فريق من المتخصصين.
وكان قد تم إعادة ترميم وصيانة وإعادة تركيب بوابة الملك (رمسيس الثالث) الموجودة شمال صالة الأعمدة الكبري وسط معابد الكرنك، والتي كانت يوما ما متصلة بسور ضخم يحيط بالمعبد من عصر الدولة الحديثة، وهو السور الذي يتم الحفر والتنظيف حوله حاليا لإعادة بناء بعض أجزاءه مرة أخرى، وكذلك يتم التنظيف حول أرضية هذه البوابة الحجرية من الجهة الجنوبية لعمل ممر حجري يصل بينها وبين قلب المعبد من جهة مسلة الملك (تحتمس الأول) وكذلك إزالة جميع المصاطب والأحجار والإشغالات المختلفة حول هذه البوابة.

أثناء وضع الكتل مرة أخرى فى أماكنها الأصلية

أعمال الحفر والتنقيب حول بوابة الملك رمسيس الثالث

صورة جوية عامة لمعابد الكرنك

صورة قديمة توضح أجزاء البوابة المختلفة في حالة انهيار

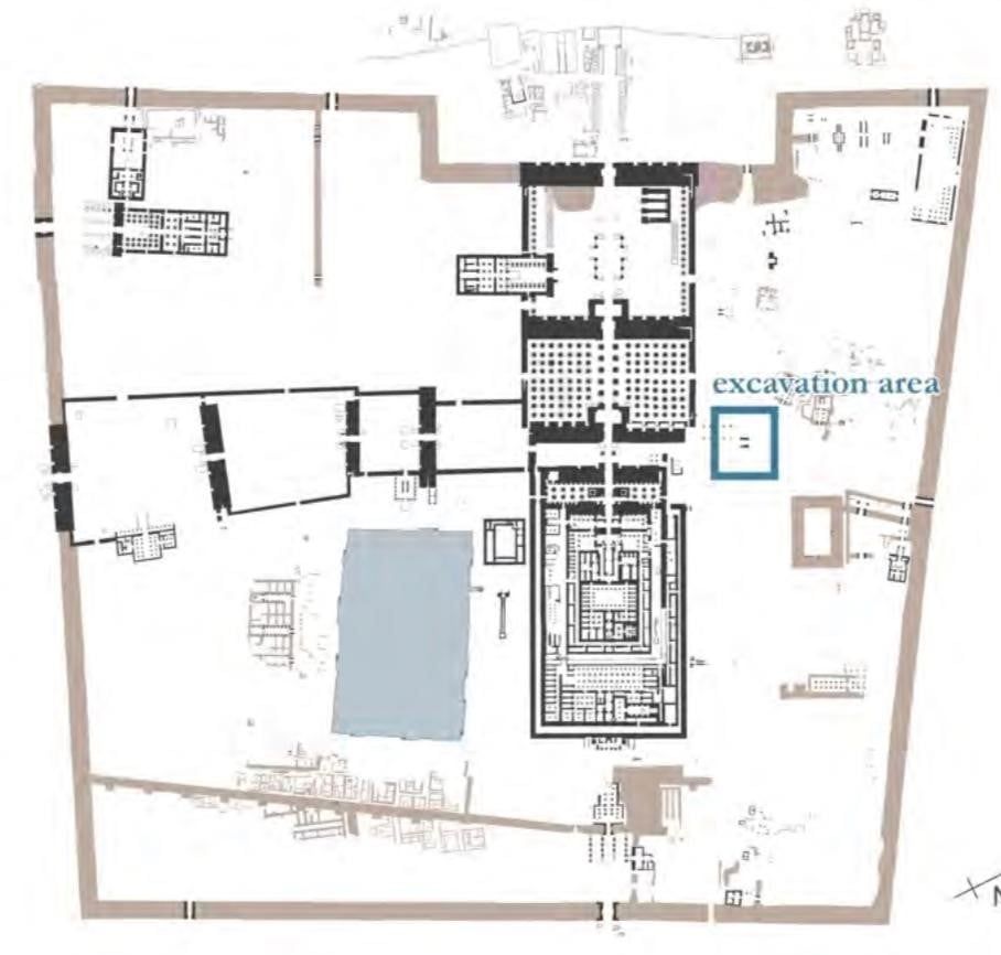
مخطط لمعابد الكرنك والمربع الأزرق يشير لمكان البوابة

وضع اللمسات الأخيرة والنهائية للبوابة تجهيزًا للافتتاح العام الماضى

وضع كتل البوابة الضخمة باستخدام الونش بعد عمل أرضية خرسانية حديثة
ملحوظة: مضمون هذا الخبر تم كتابته بواسطة اليوم السابع ولا يعبر عن وجهة نظر مصر اليوم وانما تم نقله بمحتواه كما هو من اليوم السابع ونحن غير مسئولين عن محتوى الخبر والعهدة علي المصدر السابق ذكرة.